Urban Retreat for Couples & Families in Olbia
1-bedroom townhouse with CREO kitchen and free parking.
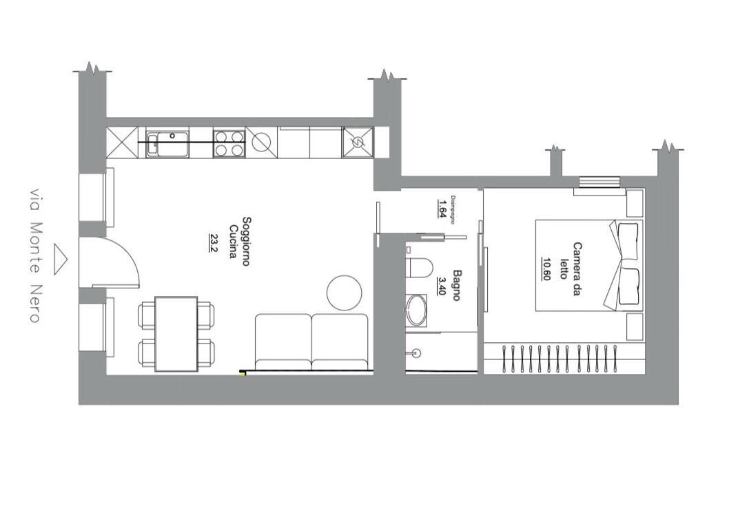
Renovated townhouse on quiet Via Monte Nero, blending style and comfort. Perfect for couples and small families with king-size bed, sofa bed, and CREO kitchen. Enjoy large TV, high-speed Wi-Fi, complimentary Sardinian wine, beach towels, parasol, 24/7 VIKEY check-in, and free street parking nearby.
via MonteNero Information
Check In/Out
Enjoy an early check-in and a late check-out of one hour when you book directly with us.
Check-in: 3:00 PM
Check-out: 11:00 AM
House Rules
Housekeeper Optional
Credit cards accepted
Children welcome
Low allergen environment
Pets not allowed
Smoking not allowed
Wheelchair inaccessible
Questions?
About
✨ Luxurious Comfort
Savor the sophistication of a custom CREO kitchen built for culinary creativity. Unwind in the spacious living area with large-screen TVs and ultra-fast Wi-Fi, all wrapped in stylish comfort.
🛌 Restful Retreat
Rest deeply on a bespoke king-size bed, complemented by custom pillows and premium linens. The roomy sofa bed converts into a two-person bed, featuring an extra topper for ultimate comfort and restful sleep.
🌊 Seaside Serenity
Grab complimentary beach towels and a parasol, and head out to Sardinia’s pristine beaches for sun-filled adventures.
📲 Effortless Arrival
Experience 24/7 automated self check-in and check-out with VIKEY — easily accessible via your smartphone for a smooth arrival.
🏙️ Explore the Area
Explore Olbia’s vibrant shops, genuine restaurants, and bars just steps away. Relax with your complimentary glass of Sardinian wine and nice piece of Pecorino cheese.
🚗 Free Street Parking
Enjoy the convenience of free street parking right outside your doorstep—no extra fees or hassle.
💎 Fully Equipped for Ultimate Comfort
This luxury townhouse is truly fully equipped: washing/dryer combination, hairdryer (föhn), premium cookware, air conditioning, and everything needed for an unforgettable stay.
Availability
Property Location
VIA MONTENERO - 24A
Suite Monte Nero is a stylish, fully renovated two-room townhouse on quiet Via Monte Nero, Olbia. Thoughtfully designed with durable, modern materials, it offers a calm, comfortable urban retreat. Perfect for families and travelers seeking clean style, quality, and a home-like feel without hotel prices—ideal for short and extended stays.
About RENTAL XII
Sardinia luxury rentals by local owner-operator
At Rental12, we turn hospitality into an art form. As Sardinia’s exclusive boutique owner-operator, we personally own, design, and curate each AZULIS home, redefining luxury holiday rentals in Sardinia with elegant Olbia suites and villas in Golfo Aranci.Celebrated by over 15,000 guests and 1,000+ five-star reviews, Rental12 is trusted for impeccable quality, comfort, and design integrity. Our in-house team ensures every stay feels seamless and personal.From our base in Olbia, we champion Conscious Hospitality — blending local tradition, ethical luxury, and the iconic AZULIS touch.👉 Experience more at RENTAL12 or explore AZULIS villas and apartments across northern Sardinia.
Comfort, Culture & Coastline — Experience It All in One Day 🌅
Ditch remote getaways that trade convenience for loneliness. In Olbia, Sardinia’s bustling harbor town, you can have both comfort and adventure. Wake up to glowing harbor views, explore the trendy shops of Corso Umberto, sip Vermentino among scenic vineyards, and watch the sun set at Pittulongu Beach — all without haste.This isn’t merely a destination — it’s a seamless, sun-soaked dream.Why spend hours on the road when Olbia puts Sardinia’s gems within easy reach? From ancient churches to beachside aperitivos, everything is close by. The city flows with a natural rhythm, mixing elegance with genuine local flavor.Skip the long journeys. Embrace the perfect harmony where every moment feels natural and effortlessly memorable.
Olbia — Where Paradise Comes to Life Every Day
More Places to Stay In Olbia
Need something a bit different? Search our selection of luxury locations across Olbia.
Local Area Guide - Via MonteNero 24A, Olbia
Central, Quiet, and Perfectly Connected
Via Montenero is a peaceful, primarily residential street just a short walk from Olbia’s lively center. The area is characterized by traditional Sardinian architecture, low traffic, and a welcoming community of locals. Quiet yet conveniently located, it offers easy access to shops and cafés without the bustle of tourist crowds.
Shops, Markets & Daily Life
Via La Marmora is a quiet residential street near lively Corso Umberto. It features classic Sardinian buildings, low traffic, and friendly locals. Perfect for those wanting central, walkable access without the tourist crowds.
Groceries are close to Via Montenero. Simply Market on Via Don Sturzo is 400 meters away. The Mercato Civico on Via Acquedotto offers fresh produce, cheeses, and seafood. Nearby, Via Acquedotto and Via Regina Elena have bakeries, butchers, and gelaterie with authentic Sardinian flavors.
Dining & Drinking
Within a 5-minute radius, options range from classic trattorias to casual wine bars. Try Trattoria Il Gambero or Ristorante Da Paolo for fresh seafood and Sardinian pasta dishes. For a stylish aperitivo or light lunch, Officina del Gusto and Art Academy Café are local favorites.
Culture & Green Spaces
The San Simplicio Basilica is a 6-minute walk, surrounded by quiet gardens and historical interest. For a bigger green space, Parco Fausto Noce (1.8 km) offers tree-lined paths, fountains, and playgrounds. Great for joggers, families, or sunset walks.
Waterfront & Views
The Molo Brinpromenade is under 2 km away — ideal for an evening stroll, ferry-watching, or grabbing a drink by the sea. Benches face the gulf, and locals gather here for peace and breeze.
Transport & Mobility
Olbia train station is just 250 meters away, with connections to Golfo Aranci, Sassari, and the airport. Buses run frequently along Viale Aldo Moro, and taxis are easily available. Beach lovers can reach Pittulongu, Bados, or Lo Squalo by car in 10–15 minutes.
Optional Tip: Explore by Bike
Local bike rentals are available within walking distance — perfect for discovering beaches or nearby vineyards without needing a car.
Contact Us
Thank you for your interest in our holiday rental property in Olbia, we'd love to hear from you.Please give us a call, send us an email or complete our contact form.
More Properties in Olbia, Italy
Looking for something a bit different in Olbia? We have a healthy selection of holiday apartments for rent across Olbia.
Search All Our Properties
🛳 Grimaldi Lines – Mainland ↔ Sardinia by Ferry
Website: rental12.com/en/grimaldiTake your car (or yourself) overnight from Civitavecchia, Livorno, Genoa, Salerno, Palermo or Barcelona to Olbia. Onboard cabins, restaurants, and sun deck — wake up in Sardinia.RENTAL12 is the only short-term rental in Grimaldi Lines' official partner network. Our guests get exclusive year-round discount codes valid on every route — see the codes and full schedule on our Grimaldi partner page.
🍴 Ristorante Liska
Website: restaurantliska.comRistorante Liska in central Olbia offers a modern take on Sardinian cuisine, featuring fresh seafood, traditional pastas, and local ingredients.With its intimate setting and excellent service, it’s ideal for romantic dinners or family celebrations - a top choice for anyone seeking authentic Sardinian flavours.
🍺 Dolmen Birra Artigianale di Sardegna
Website: birradolmen.itDolmen is an independent craft brewery from Irgoli, Sardinia. Find their welcome beer in your apartment.Brewed with pure mountain water and local ingredients, Dolmen’s range from golden lagers to hoppy IPAs. Each beer captures Sardinia’s wild spirit, making it perfect for warm evenings and good company.
🧀 Fattorie Gennargentu
Website: fattoriegennargentu.itFattorie Gennargentu, based in the highlands of Fonni, produces the artisanal pecorino cheese and traditional sausages in your welcome gift.Made from raw sheep’s milk and ancient recipes, their award-winning products reflect true Sardinian heritage and craftsmanship, offering you an authentic taste of the island’s soul.
🍷 Cantina del Vermentino di Monti
Website: vermentinomonti.itCantina del Vermentino di Monti, founded in 1956 in Gallura, produces the welcome bottle of wine in your apartment. Uniting over 300 local growers, this historic winery crafts elegant, mineral-rich Vermentino wines that reflect northern Sardinia’s sun, soils, and winds - bringing the island’s warmth and character straight to your table.
🍽️ Chef On Demand
Website: chefondemand.it
Instagram: @chefondemand.itChef On Demand provides bespoke private dining across Italy, bringing professional chefs to your holiday home for any occasion. Menus are customised to your tastes and dietary needs, featuring fresh local ingredients and Italian classics - from Sardinian seafood to Tuscan truffles.
🌅 Phi Beach
Website: phibeach.com
Instagram: @phibeachPhi Beach, set on the rugged Costa Smeralda coastline, is Sardinia’s iconic open-air club and dining spot. Famous for breathtaking sunsets, top DJs, and dramatic granite scenery, it offers unforgettable nights of cocktails and dancing under the stars.
⛵ MareFun
Website: marefun.com
Instagram: @marefunMareFun provides luxury yacht charters and boat rentals along Sardinia’s northeast coast, featuring stylish vessels for up to 12 guests.Their professional, multilingual crew delivers a safe and relaxed experience, with custom itineraries to Tavolara, La Maddalena, Bonifacio, and secret local coves.
🍽️ Ristorante La Spigola
Website: ristorantelaspigola.it
Instagram: @ristorante_la_spigola_La Spigola in Golfo Aranci blends beachside relaxation with gourmet dining. By day, enjoy fresh seafood in a casual bistrot setting; by night, experience refined cuisine from Chef Roberto Pisano, featuring local catch and produce from their biodynamic garden.With creative Sardinian flavours and stunning seaside views, La Spigola offers exceptional dining from sunrise to stars.
🚗 RentSmart24 – Olbia
Website: rentsmart24.com
Instagram: @rentsmart24RentSmart24 offers 24/7 car rental near Olbia Airport, with a wide selection from economy cars to 9-seater vans.Enjoy free airport shuttle and flexible cancellation for a smooth, affordable way to explore Sardinia at your own pace.
🌊 La Scogliera Group – La Maddalena
Website: lascoglieragroup.com
Instagram: @lascogliera_restaurantLa Scogliera on La Maddalena Island offers exclusive seafood dining with panoramic sea views and a romantic atmosphere. Renowned for fresh dishes and elegant style, it’s a favourite of the international jet set and perfect for a luxurious Sardinian experience.
🌞 Azulis
Website: azulis.itAzulis is the signature of excellence in modern living.
Every Azulis project - from luxury apartments to seaside villas - embodies top-tier design, sustainability, and comfort. Located in prime Italian destinations like Olbia, each residence offers energy efficiency, smart features, and bold architecture.For holidays or long-term stays, Azulis sets a new standard in high-end lifestyle experiences.
















